제품 설명
FUJI 에스컬레이터는 신뢰성과 성능이 뛰어난 것으로 잘 알려져 있습니다. 쇼핑몰, 역, 공항 및 기타 공공 장소에 완벽하게 들어맞아 쉽고 편안하며 안전하게 탑승할 수 있습니다.
안전 및 신뢰성
이 에스컬레이터는 튼튼한 소재를 사용하고, 정밀하게 제작되었으며, 특수 미끄럼 방지 난간과 긴급 상황에 대비한 빠른 브레이크를 갖추고 있어 안전하고 믿을 수 있습니다.
아름다운 모습
폭 1000mm의 투명한 핸드레일은 에스컬레이터를 고급스럽게 보이게 하며 승객에게 더욱 넓고 개방적인 느낌을 줍니다. 게다가 부드럽고 쥐기 편해요.
훌륭한 가치
1000mm 폭의 투명 난간 후지 에스컬레이터는 합리적인 가격으로 최고의 성능을 제공합니다. 고급 생산과 고품질 소재로 긴 수명과 낮은 유지 관리를 보장합니다. 또한, 우리는 최고 수준의 판매 후 지원을 제공합니다.

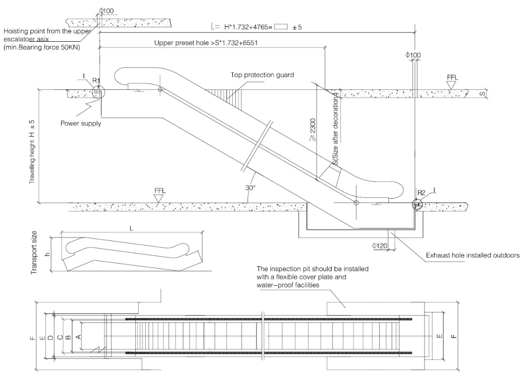
건축배치도 및 시방서


표준 기능

1000mm 너비 투명의 안정성을 향상시키는 방법난간후지 에스컬레이터?
폭 1000mm의 투명 난간 FUJI 에스컬레이터를 더욱 안정적으로 만들려면:
● 견고한 지지 구조: 다양한 하중과 조건을 처리하기 위해 강력한 지지 구조를 사용합니다.
● 원활한 작동:구동 시스템을 최적화하고 진동을 줄여 원활한 작동을 보장합니다.
● 지능형 제어 시스템:실시간 피드백을 기반으로 조정되는 스마트 제어 시스템을 구현합니다.
● 내구성이 뛰어난 투명 난간:난간에는 내구성이 있고 투명한 소재를 사용합니다.
● 안전 기능:사고를 방지하기 위해 가장자리 및 장벽과 같은 안전 기능을 추가합니다.
● 유지 관리 고려 사항:원활한 작동을 유지하기 위해 유지 관리 및 검사가 용이하도록 설계하십시오.

생산 흐름








인기 탭: 1000mm 폭 완전 투명 난간 후지 에스컬레이터, 중국 1000mm 폭 완전 투명 난간 후지 에스컬레이터 제조 업체, 공급 업체, 공장



